
Yangın kepenk kapıları Çeşitli mülklerin emniyeti ve güvenliğinde önemli bir rol oynar. Bu özel kapılar yangının, dumanın ve ısının yayılmasını önlemeye yardımcı olur, sakinlerin tahliye olması ve itfaiyecilerin gelmesi için değerli zaman sağlar. Bu derinlemesine makalede, yangın kepenk kapılarının dünyasını keşfedecek, önemini, türlerini, işlevselliğini, uygulamalarını ve pazar içgörülerini tartışacağız.
İçindekiler
Yangın Kepenk Kapılarının Önemi
Yangın kepenk kapıları pasif yangın koruma sistemlerinin hayati bileşenleri olup aşağıdaki avantajları sunar:
- Yangın ve dumanın kontrol altına alınması:Bu kapılar yangının yayılmasını önleyen ve bina içerisinde yayılan duman miktarını sınırlayan bir bariyer görevi görür.
- Varlıkların ve mülkün korunması: Yangın kepenkleri yangını kontrol altına alarak, mal ve değerli varlıklara gelebilecek zararı en aza indirir.
- Tahliye zamanı:Bunlar, sakinlerin binayı boşaltması ve acil durum ekiplerinin gelmesi için ek süre sağlar.
- Mevzuata uyum:Yangın kepenk kapılarının montajı, bina kodlarına ve güvenlik yönetmeliklerine uymak için sıklıkla zorunludur.
Yangın Kepenk Kapılarının Çeşitleri

- Yalıtımlı yangın kepenk kapıları: Bu kapılar, aralarında yalıtım bulunan çok sayıda çelik katmana sahiptir ve daha iyi ısı direnci ve enerji verimliliği sunar. Hem yangın korumasının hem de ısı yalıtımının önemli olduğu ticari ve endüstriyel ortamlar için idealdir.
- Tek cidarlı yangın kepenkleri: Tek katmanlı çelikten oluşan tek cidarlı yangın kepenkleri, daha küçük açıklıklar ve birincil gereksinimin yangın koruması olduğu alanlar için uygundur. Genellikle daha düşük yalıtım ihtiyacı olan konut mülklerinde ve ticari binalarda kullanılırlar.
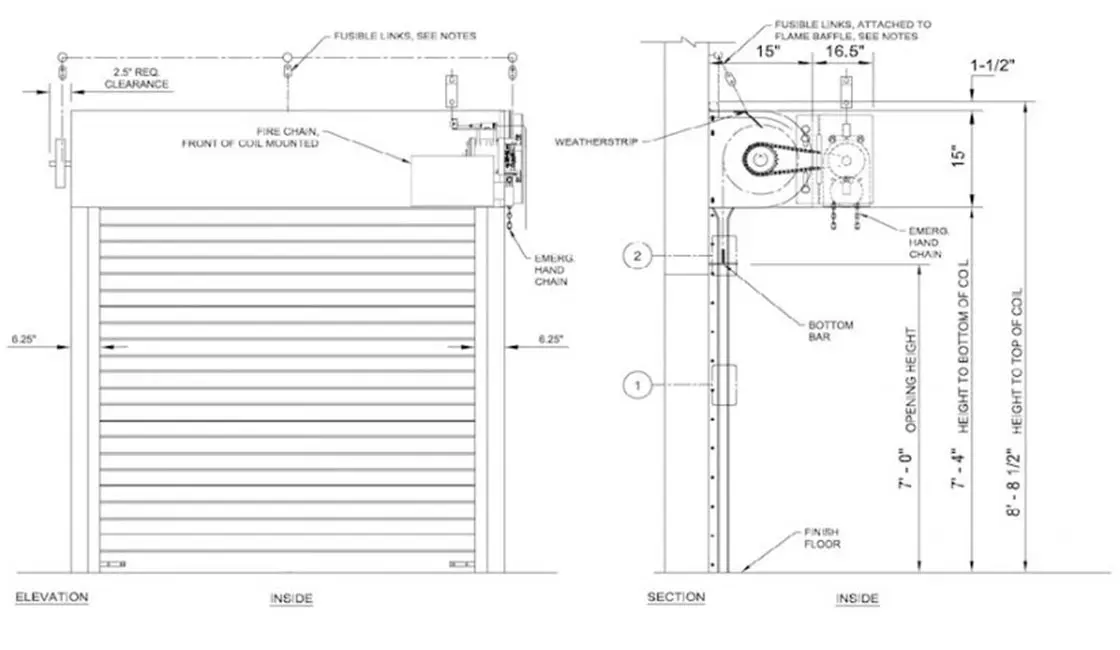
Yangın Kepenk Kapıları Nasıl Çalışır

Yangın Kepenk Kapılarının Uygulamaları
Yangın kepenk kapıları aşağıdakiler de dahil olmak üzere çok çeşitli uygulamalar için uygundur:
- Ticari binalar:Ofisler, perakende mağazaları ve alışveriş merkezleri varlıklarını ve müşterilerini korumak için yangın kepenk kapılarından faydalanmaktadır.
- Endüstriyel tesisler:Üretim tesisleri, depolar ve fabrikalar, güvenlik yönetmeliklerine uymak ve yangının yayılma riskini en aza indirmek için yangın kepenk kapıları gerektirir.
- Konut özellikleri:Yangın kepenkleri, çok sayıda dairenin bulunduğu konut binalarına veya özel evlere güvenliği artırmak amacıyla monte edilebilir.
- Kamu binaları:Okullar, hastaneler ve diğer kamu kurumlarında da bina sakinlerinin güvenliğini sağlamak amacıyla yangın kepenklerine ihtiyaç duyulmaktadır.
Yangın Kepenk Kapısı Pazarı Görüşleri
Küresel yangın kepenk kapısı pazarı, ticari, endüstriyel ve konut mülkleri gibi çeşitli sektörlerde gelişmiş yangın güvenliği önlemlerine yönelik artan talep nedeniyle son yıllarda önemli bir büyüme yaşamıştır. Bu büyüme, yangın güvenliği, daha sıkı bina kodları ve yönetmelikleri ve değerli varlıkları ve insan hayatlarını koruma ihtiyacı konusunda artan farkındalığa bağlanabilir. Sonuç olarak, üreticiler pazarın gelişen ihtiyaçlarını karşılayan yenilikçi, yüksek kaliteli yangın kepenk kapıları üretmek için sürekli olarak araştırma ve geliştirmeye yatırım yapmaktadır. Özelleştirilmiş çözümler sağlamaya ve güvenlik standartlarına uyumu sağlamaya odaklanarak
Doğru Üreticiyi Seçmek
Yangın kepenk kapısı üreticisi seçerken aşağıdaki faktörleri göz önünde bulundurun:
- Deneyim ve itibar: Yüksek kaliteli yangın kepenk kapıları üretme konusunda kanıtlanmış bir geçmişe sahip ve sektörde sağlam bir üne sahip bir üretici arayın.
- Sertifikasyon: Üreticinin ürünlerinin gerekli güvenlik standartlarını karşıladığından ve saygın kuruluşlardan sertifikalara sahip olduğundan emin olun.
- Özelleştirme:İyi bir üretici, özel ihtiyaçlarınıza göre uyarlanmış özel çözümler sunabilmelidir.
- Satış sonrası destek:Kurulum ve bakım dahil olmak üzere mükemmel müşteri hizmeti ve satış sonrası desteği sağlayan bir üreticiyi tercih edin.
Sonuç olarak
Yangın kepenk kapıları, herhangi bir binanın pasif yangın koruma sisteminin temel bir bileşenidir. Çeşitli türleri, özellikleri ve uygulamaları anlayarak, ihtiyaçlarınız için doğru yangın kepenk kapısını seçerken bilinçli bir karar verebilirsiniz. Güvenlikten ödün vermeyin; saygın bir üreticiden yüksek kaliteli bir yangın kepenk kapısına yatırım yapın.
Profesyonel bir yangın kepenk kapısı üreticisi olan RAX Door, ihtiyaçlarınıza göre uyarlanmış, uzmanca hazırlanmış, sertifikalı ve özelleştirilebilir yangın kepenk çözümleri sunar. Güvenliğiniz ve gönül rahatlığınız için deneyimimize ve mükemmelliğe olan bağlılığımıza güvenin.
SSS
Yangın kepenk kapısının temel amacı nedir?
Yangın kepenk kapısının temel amacı, yangının ve dumanın binada yayılmasını engellemek, varlıkları ve mülkü korumak ve sakinlerin güvenli bir şekilde tahliye olmaları için zaman tanımaktır.
Yangın kepenk kapıları nasıl çalışır?
Yangın kepenk kapıları, yangın durumunda otomatik veya manuel olarak kapanacak şekilde tasarlanmıştır ve yangının ve dumanın binanın diğer alanlarına yayılmasını önleyen bir bariyer görevi görür.
Yangın kepenk kapıları hangi malzemelerden üretilir?
Yangın kepenk kapıları genellikle ısıya ve yangına karşı yüksek direnç sağlayan çelikten yapılır. Yalıtımlı yangın kepenklerinde daha iyi ısı direnci ve enerji verimliliği için aralarında yalıtım bulunan çok sayıda çelik katmanı bulunur.
Yangın kepenk kapılarının farklı yangın dereceleri nelerdir?
Yangın kepenk kapıları için yangın derecelendirmeleri, yangına maruz kalmaya dayanabilecekleri süreyi gösterir. Yaygın yangın derecelendirmeleri 60, 120 ve 240 dakikayı içerir.
Yangın kepenk kapıları yasal olarak zorunlu mudur?
Yerel yapı kodlarına ve güvenlik yönetmeliklerine bağlı olarak, yangın kepenk kapıları belirli bina tiplerinde veya bir binanın belirli yerlerinde zorunlu olabilir.
Yangın kepenk kapısında hangi sertifikalara bakmalıyım?
Gerekli güvenlik standartlarını karşıladığından emin olmak için UL veya LPCB gibi saygın kuruluşlardan sertifika alan yangın kepenk kapılarını arayın.
Yangın kepenk kapısı üreticisi seçerken dikkat edilmesi gereken faktörler nelerdir?
Yangın kepenk kapısı üreticisini seçerken üreticinin deneyimini, itibarını, sertifikalarını, özelleştirme seçeneklerini ve satış sonrası desteğini göz önünde bulundurun.