Temiz Oda Kapısı

Temiz oda kapıları, laboratuvarlar, ilaç üretim tesisleri ve elektronik üretim tesisleri gibi kontrollü ortamların temizliğini ve sterilliğini korumak için özel olarak tasarlanmıştır. Bu kapılar, kontaminasyon riskini en aza indirmek için hava geçirmez contalar, pürüzsüz yüzeyler ve dökülmeyen malzemeler içerir. Gelişmiş malzemelerin ve teknolojinin kusursuz entegrasyonu, temiz oda kapılarının kullanım kolaylığı ve işlevselliğini korurken sıkı endüstri standartlarını karşılamasını sağlar.

Rax Door'un temiz oda kapıları olağanüstü performansları, dayanıklılıkları ve tasarımlarıyla öne çıkıyor. Müşteriler mükemmel kontaminasyon kontrolü, kolay temizlenen yüzeyleri ve çeşitli temiz oda sınıflandırmalarıyla uyumluluğunu takdir ediyor. Kapıların güvenilir çalışması ve düşük bakım gereksinimleri, kontrollü ortamların verimliliğine katkıda bulunuyor. Rax Door'un özelleştirilmiş çözümler sağlama taahhüdü, temiz oda kapılarının her tesisin benzersiz ihtiyaçlarına göre uyarlanmasını sağlar.

Temiz Oda Kapısının Önde Gelen Üreticisi

Rax Door, kontrollü ortamların bakımı için yenilikçi çözümler sunmaya adanmış, yüksek kaliteli temiz oda kapılarının önde gelen üreticisidir. Kapsamlı sektör deneyiminden yararlanan Rax Door, en yüksek temizlik, performans ve müşteri memnuniyeti standartlarını karşılayan ürünler sunmaya kendini adamıştır.

RAX Door'yi seçmenin avantajları:

  • Son teknoloji ve malzemeler
  • Belirli ihtiyaçlar için özelleştirilebilir yapılandırmalar
  • Olağanüstü ısı ve ses yalıtımı
  • Sıkı endüstri standartlarına uyum
  • Hijyeni korumak için kolay temizlenebilir yüzeyler
  • Uzun ömürlü dayanıklılık ve güvenilirlik
  • Uzman müşteri desteği ve rehberliği
şartname Detaylar
Ürün Adı RAX Temiz Oda Kapısı
Malzeme Seçenekleri Paslanmaz çelik, galvanizli çelik, alüminyum
Kapı Kalınlığı 50 mm (2 inç)
İşlem Seçenekleri Manuel, Otomatik
Isı Yalıtımı U değeri: 0,45 W/m²K
Ses Yalıtımı Rw: 35 dB
Hava geçirmez conta Sınıf 4 (EN 12207)
Uyumluluk ISO 14644-1, cGMP, USP 797
Özelleştirilebilir Yapılandırmalar Boyut, görüş panelleri, geçişler, erişim kontrolü
Yüzey Kaplama Pürüzsüz, temizlemesi kolay
Uygulamalar İlaç, tıbbi, elektronik, araştırma tesisleri, laboratuvarlar





    Bu site reCAPTCHA ve Google tarafından korunmaktadır Gizlilik Politikası Ve Hizmet Şartları uygula.

    Bilgilendirme Afişi
    Temiz Oda Kapısı Tedarikçileri ve Toptancıları
    RaxDoor işletmeniz için çeşitli Endüstriyel Kapılar sağlamaya kendini adamıştır.
    Bize Ulaşın

    Doğru Temiz Oda Kapısını Seçmek: Kapsamlı Bir Kılavuz

    temiz oda kapısıTemiz oda kapıları, herhangi bir kontrollü ortamın temel bir bileşenidir. Alanın bütünlüğünü korur ve hava sızmasını, kirleticileri ve partikül oluşumunu en aza indirerek optimum temizliği garanti eder. Bu kılavuz, toptan müşterileriniz için ideal temiz oda kapısını seçerken bilinçli bir karar vermenize yardımcı olacak değerli bilgiler sağlayacaktır.

    Temiz Oda Kapısı Seçerken Dikkat Edilmesi Gereken Temel Faktörler

    temiz oda kapılarının çeşitleri

    1. Temizlik Gereksinimleri

    • Uygun kapı tipini belirlemek için temiz odanın ISO sınıflandırmasını anlayın.
    • Kapının malzemelerinin ve yapısının temiz odanın temizlik standartlarına uygun olduğundan emin olun.
    • Partikül birikimini en aza indirmek ve temizliği kolaylaştırmak için pürüzsüz yüzeyli ve dikişsiz tasarımlı kapılar seçin.

    2. Kapı Malzemeleri

    • Popüler malzemeler arasında paslanmaz çelik, alüminyum ve uPVC bulunur.
    • Paslanmaz çelik sağlamdır, korozyona dayanıklıdır ve temizlenmesi kolaydır.
    • Alüminyum hafiftir, uygun fiyatlıdır ve iyi ısı yalıtım özelliklerine sahiptir.
    • uPVC uygun maliyetli, dayanıklı ve az bakım gerektiren bir malzemedir.

    3. Kapı Türleri

    • Salıncak Kapılar: Küçük ve orta büyüklükteki açıklıklar için uygundur, montajı kolaydır ve minimum bakım gerektirir.
    • Sürgülü Kapılar: Geniş açıklıklar ve dar alanlar için idealdir, manuel veya otomatik olabilir.
    • Rulo Kapılar: Yer tasarrufu sağlayan, yüksek hızlı çalışma, geniş ve yoğun trafiğe sahip açıklıklar için uygundur.

    4. Kapı Performansı

    • Hava kaçak oranlarını, basınç dayanıklılığını ve yalıtım özelliklerini göz önünde bulundurun.
    • Temiz odanın hava basıncını korumak ve kontaminasyonu en aza indirmek için düşük hava sızdırma oranına sahip kapılar arayın.
    • Kapının temiz odadaki basınç farklılıklarına dayanıklı olduğundan emin olun.

    5. Kapı Otomasyonu

    • Otomatik kapılar insan temasını sınırlayarak kontaminasyon riskini azaltır.
    • Hava değişimini en aza indirmek için kapının açılıp kapanma hızını göz önünde bulundurun.
    • Kullanımı kolay kontrol sistemlerine ve temassız sensörler veya uzaktan kumandalar gibi özelliklere sahip kapıları tercih edin.

    Temiz Oda Kapılarının Tasarım ve Yapı Özellikleri

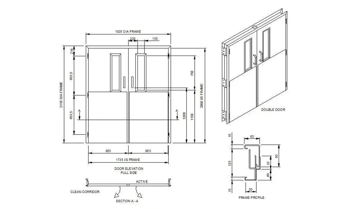
    temiz oda kapısı çizimi

     

    • Kapalı İnşaat:Temiz oda kapıları, kirleticilerin kontrollü ortama girmesini veya kaçmasını önlemek için hava geçirmez contalara sahip olmalıdır.
    • Pürüzsüz Yüzeyler:Kapıların kolay temizlenebilen, minimum dikiş, ek yeri ve çatlak içeren yüzeylere sahip olması, partikül birikimini azaltacaktır.
    • Vizyon Panelleri: Entegre pencereler, temizliği ve hava geçirmezliği korurken görüş imkanı da sağlar.
    • Kapı Donanımı: Korozyonu en aza indirmek ve uzun ömür sağlamak için paslanmaz çelik veya eloksallı alüminyum gibi malzemelerden yapılmış donanımları seçin.

    Temiz Oda Kapı Performansının Nasıl Korunacağı

    • Contalar, menteşeler ve otomasyon sistemleri dahil olmak üzere kapı bileşenlerini düzenli olarak inceleyin ve bakımını yapın.
    • Hasarı önlemek ve temizlik seviyesini korumak için kapı yüzeylerini uygun temizlik maddeleri ve yöntemleri kullanarak temizleyin.
    • Temiz oda kapısının kullanımı ve bakımı konusunda personele uygun eğitim verildiğinden emin olun.

    RAX Door: En İyi Temiz Oda Kapısı Üreticisi

    RAX Door'de, temiz oda kapılarının kontrollü ortamların bütünlüğünü korumada oynadığı kritik rolü anlıyoruz. Kapılarımız, son teknoloji, yüksek kaliteli malzemeler ve en katı temizlik gerekliliklerini karşılamaya yönelik yoğun bir odaklanma ile tasarlanmıştır. Toptan müşterilerimizin çeşitli ihtiyaçlarını karşılamak için çok çeşitli kapı tipleri, malzemeler ve otomasyon seçenekleri sunuyoruz.

    RAX Door, mükemmellik, yenilikçilik ve müşteri memnuniyetine olan bağlılığımızla önde gelen bir temiz oda kapısı üreticisi olarak öne çıkıyor. Rekabetçi fiyatlandırma ve eşsiz kaliteyi garanti ederken, özel gereksinimlerini karşılayan özel çözümler sunmak için müşterilerimizle yakın bir şekilde çalışıyoruz. Güvenilir ve verimli bir temiz oda kapısı çözümü için RAX Door'yi seçin.

    SSS

    Temiz oda kapısının amacı nedir?

    Temiz oda kapısı, hava sızmasını, kirleticileri ve partikül oluşumunu en aza indirerek kontrollü ortamların temizliğini ve bütünlüğünü korumak için tasarlanmıştır.

    Temiz oda kapısı seçerken hangi faktörlere dikkat edilmelidir?

    Dikkat edilmesi gereken faktörler arasında temizlik gereksinimleri, kapı malzemeleri, kapı tipleri, kapı performansı ve kapı otomasyonu yer alır.

    Temiz oda kapılarında kullanılan yaygın malzemeler nelerdir?

    Temiz oda kapıları için yaygın olarak kullanılan malzemeler arasında paslanmaz çelik, alüminyum ve uPVC bulunur.

    Temiz oda kapılarının farklı tipleri nelerdir?

    Temiz oda kapılarının başlıca tipleri; salıncak kapılar, sürgülü kapılar ve rulo kapılardır.

    Temiz oda ortamlarında kapı otomasyonu neden önemlidir?

    Kapı otomasyonu, insan temasını sınırlayarak kontaminasyon riskini azaltır ve hava değişimini en aza indirerek verimli açılıp kapanmayı sağlar.

    Temiz oda kapısı üreticisinde nelere dikkat etmeliyim?

    Kanıtlanmış bir geçmişe sahip, kapsamlı kapı seçenekleri sunan, rekabetçi fiyatlandırmaya sahip, kaliteye ve müşteri memnuniyetine bağlı bir üretici arayın.

    Bugün Hızlı Bir Teklif Alın





      Bu site reCAPTCHA ve Google tarafından korunmaktadır Gizlilik Politikası Ve Hizmet Şartları uygula.

      4.7/5 - (113 oylar)